Classement BF-NGTHK
Général
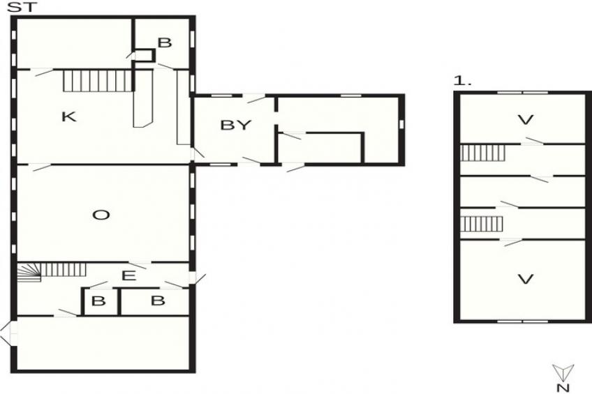
Ce logement de vacances pour 6 personnes dispose de deux salles de bains et de trois chambres à coucher et dispose de six lits une place. Le logement de vacances est équipé de une TV et un chauffage. En outre, il y a une terrasse, un kit de meubles de jardin, un balcon et un jardin. La salle de bains est dotée de une toilette et une douche.
Le logement de vacances dispose de un sèche-linge, un frigo, un congélateur, une connexion internet (sans fil) et une machine à laver.
Cuisine
La cuisine est équipée de un four, un lave-vaisselle, une cafetière et un four.
Informations détaillées
Un dépôt remboursable peut être demandé à l’approche de votre date d’arrivée. Ce dépôt couvre la consommation des services publics pendant votre séjour ainsi que les services supplémentaires éventuellement utilisés. Le montant final sera ajusté en fonction des relevés de compteurs réels, de l’utilisation effective des services supplémentaires, et tout solde restant sera remboursé dans un délai de 21 jours après le départ.
Particularités
Vu le calme qui règne dans cette maison, aucune location n'est accordée à des groupes de jeunes
Classement
- Terrasse
- Jardin
- Mobilier de jardin
- Salle de séjour
- Cuisine (plaque de cuisson (électrique, cafetière/percolateur, four, lave-vaisselle , réfrigérateur, congélateur (100-139L)
- Living/chambre à coucher (TV (chaînes de télévision Danoises)
- 2x lit simple
- 2x lit simple
- 2x lit simple
- Lavabo
- WC
- Lavabo
- Douche
- Réserve (sèche-linge, lave-linge )
- Central
Dans les alentours de BF-NGTHK
A 6,37 kilomètre de BF-NGTHK, vous tomberez sur un ou plusieurs restaurants. De plus, il y a un lac/un plan d'eau libre à moins de 500 mètre. Un supermarché est présent dans les environs, à 6,57 kilomètre. Vous pourrez aussi vous détendre, car dans les environs de BF-NGTHK à Guldborg, vous pouvez la plage ou l'eau.
- Plage (1,38 km)
- Restaurant (6,37 km)
- Supermarché (6,57 km)
- Eau (500 m)
-
Ce logement de vacances -
Logements de vacances dans le voisinage
Prix et disponibilité
Pour déterminer le prix exact, sélectionnez d'abord une date d'arrivée ci-dessous. Les éventuels frais supplémentaires ou options sur place sont indiqués sous le calendrier.
Le calendrier ci-dessous indique la disponibilité de BF-NGTHK à Guldborg. Les dates d'arrivée encore disponibles sont en vert foncé. Les jours où vous pouvez séjourner dans ce logement sont en vert clair. Les dates en rouge sont celles où le logement est déjà occupé et pour celles en gris, la disponibilité du logement n'est pas encore connue.
- Disponible
- Arrivée possible
- Occupé
- Inconnu pour l'instant
Vous trouverez ci-dessous un aperçu des périodes disponibles et des prix. Avec le bouton « Réserver maintenant », vous pouvez facilement réserver avec notre connexion sécurisée : toutes vos données seront traitées avec le plus grand soin.
| Durée du séjour | Arrivée | Départ | Prix | ||
|---|---|---|---|---|---|
Frais sur place
| Obligation | |
|---|---|
| Chauffage/énergie | DKK 595 par Unit |
| Électricité | DKK 3,40 par kWh |
| Optionnel | |
|---|---|
| Chaise haute | DKK 100 par séjour |
| Draps | Possibilité de louer par set de linge, DKK 135 par personne par Séjour |
| Lit bébé | DKK 100 par séjour |
| Nettoyage final | DKK 1.390, ou à faire par le locataire |
| Serviettes de bain | Inclus dans le set de linge |
| Torchons de cuisine | Inclus dans le set de linge |
Conditions et délais de paiement
Un acompte de 30 % du montant total et de l'assurance d'annulation éventuelle doit être payé dans les sept jours. Le deuxième versement interviendra au plus tard six semaines avant le départ.
Si vous payez en deux fois, alors vous recevrez un rappel par e-mail une semaine avant l'expiration du deuxième délai. Si vous partez dans un délai de six semaines, le paiement doit être effectué en une seule fois. En cas de départ dans les quinze jours, le paiement doit être effectué en une seule fois et par carte de crédit (tous les pays), PayPal ou Mister Cash (Belgique uniquement).
pour un week-end
Basé sur 15 évaluations
- 6
- 3
- 2
Mode de paiement
Réserver sans souci
Si vous avez des questions relatives à cette location de vacances ou besoin d'aide pour faire votre réservation, n'hésitez pas à nous contacter.
Posez une question