Classement "Keke" - 120m from the sea
Général
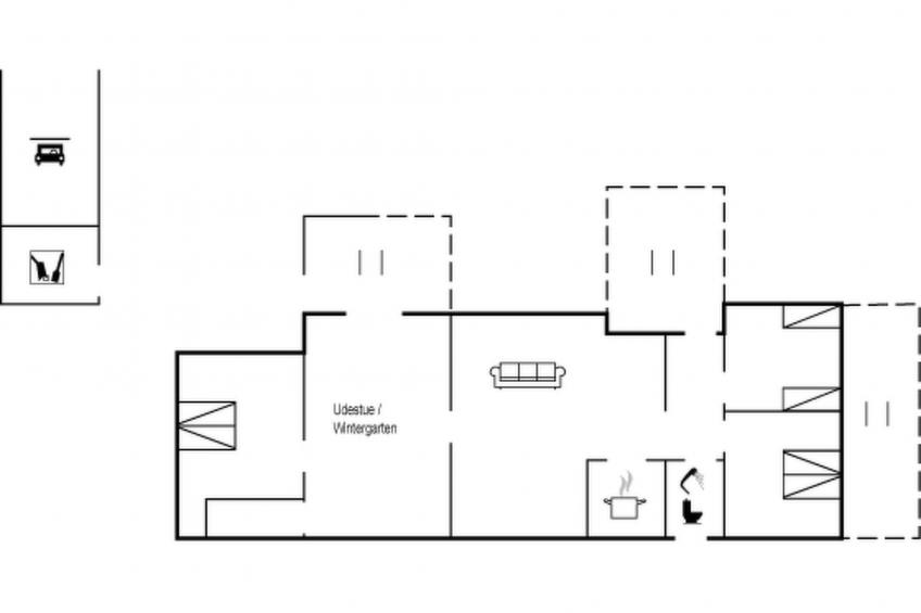
Ce logement de vacances pour 6 personnes dispose d'une salle de bains et de trois chambres coucher. Le logement de vacances est équipé de une TV et un feu ouvert. En outre, il y a un barbecue et une terrasse. Vous pouvez stationner votre voiture sur un parking. La salle de bains est dotée de une douche.
Le logement de vacances dispose de une connexion internet (sans fil), un congélateur et une machine à laver.
Enfants
Spécialement pour les (petits) enfants, il y a un lit pour bébés et équipement de jeux.
Cuisine
La cuisine est équipée de un lave-vaisselle.
Informations détaillées
"Keke" - 120m from the sea", maison 3 pièces 88 m2. Logement idéal pour 6 adultes. Séjour avec TV et radio. 1 chambre avec 1 lit double. 1 chambre avec 1 lit double. 1 chambre avec 2 lits. Cuisine (four, lave-vaisselle, 4 plaques vitrocéramiques, congélateur). Douche/WC. Jardin d'hiver. A disposition: chaise haute pour enfant, lit bébé. Internet (Connexion WIFI). Veuillez noter: logement non-fumeur. Les réservations ne sont autorisées que pour des vacances. 336
Maison individuelle, année de construction 1972. À 120 m de la mer. A usage privé: terrain 804 m2, jardin entretenu. Barbecue, espace de jeux pour les enfants. Infrastructures de la Maison: lave-linge. Place de parking près de la maison. Abri voiture. Magasin d'alimentation 1.2 km. Le propriétaire n'accepte pas les groupes de jeunes.
Dans les alentours de "Keke" - 120m from the sea
-
Ce logement de vacances -
Logements de vacances dans le voisinage
Prix et disponibilité
Pour déterminer le prix exact, sélectionnez d'abord une date d'arrivée ci-dessous. Les éventuels frais supplémentaires ou options sur place sont indiqués sous le calendrier.
Le calendrier ci-dessous indique la disponibilité de "Keke" - 120m from the sea à Rødvig. Les dates d'arrivée encore disponibles sont en vert foncé. Les jours où vous pouvez séjourner dans ce logement sont en vert clair. Les dates en rouge sont celles où le logement est déjà occupé et pour celles en gris, la disponibilité du logement n'est pas encore connue.
- Disponible
- Arrivée possible
- Occupé
- Inconnu pour l'instant
Vous trouverez ci-dessous un aperçu des périodes disponibles et des prix. Avec le bouton « Réserver maintenant », vous pouvez facilement réserver avec notre connexion sécurisée : toutes vos données seront traitées avec le plus grand soin.
| Durée du séjour | Arrivée | Départ | Prix | ||
|---|---|---|---|---|---|
Frais sur place
| Optionnel | |
|---|---|
| Chaise haute | € 2,86 par pièce et par jour (01-01-2023 - 12-04-2028) |
| Lit bébé (jusqu'à 2 ans) | € 2,86 par pièce et par jour (01-01-2023 - 12-04-2028) |
| Inclus | |
|---|---|
| Frais d'énergie | |
| Internet (Wi-Fi) | |
| Linge (1er jeu de draps et serviettes) | |
| Nettoyage final (le nettoyage de base est toujours à faire par le client) | |
| Parking extérieur | |
Conditions et délais de paiement
Après confirmation de la réservation, un acompte de 20 % du prix total de location doit être payé dans les dix jours. Ensuite, le deuxième paiement devra être effectué au plus tard 42 jours avant le départ. Si vous partez dans un délai de six semaines, la totalité du montant doit être payée immédiatement.
Basé sur 1 évaluation
- 6
- 3
- 0
Mode de paiement
Si vous avez des questions relatives à cette location de vacances ou besoin d'aide pour faire votre réservation, n'hésitez pas à nous contacter.
Posez une question