Classement BF-57HYC
Général
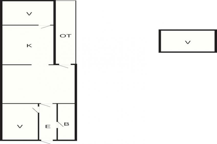
Ce logement de vacances pour 6 personnes dispose d'une salle de bains et de deux chambres à coucher et dispose de deux lits une place et deux lits doubles. Le logement de vacances est équipé de un chauffage. En outre, il y a une terrasse et un kit de meubles de jardin. La salle de bains est dotée de une toilette et une douche.
Le logement de vacances dispose de une combinaison de froid et de chaud et deux congélateurs.
Cuisine
La cuisine est équipée de un lave-vaisselle et un four.
Informations détaillées
Cette charmante maison de vacances bien entretenue est située dans le célèbre village balnéaire de Rørvig. Elle offre une atmosphère chaleureuse et intime pour une escapade relaxante. Dès l'entrée, vous découvrirez une chambre avec un lit double et une salle de bain lumineuse et moderne, rénovée en 2020. Le séjour ouvert donne sur une terrasse couverte et donne accès à la cuisine équipée d'un lave-vaisselle et d'un petit coin repas confortable. La deuxième chambre dispose d'un grand lit double de 180 x 200 cm et d'un accès direct à la terrasse couverte.
À l'extérieur, la propriété est un havre de paix propice à la détente et aux jeux. Le grand jardin naturel comprend de nombreux coins détente, un hamac, du mobilier de jardin, des chaises longues et un barbecue. Les enfants ont amplement d'espace pour jouer et courir, ainsi qu'un sentier de promenade et un banc pour profiter du paysage.
Une ancienne annexe sur la propriété offre deux lits simples supplémentaires, mais veuillez noter qu'elle n'est pas équipée d'électricité. La maison se trouve à seulement 1,5 km des restaurants, des stands de street food, du mini-golf, du glacier et des commerces de proximité de Rørvig. Les familles apprécieront la plage de sable particulièrement adaptée aux enfants, idéale pour la baignade et la construction de châteaux de sable.
Cette maison allie parfaitement confort intérieur et plaisirs extérieurs, idéale pour les familles ou les groupes d'amis à la recherche d'un havre de paix près de la côte. La location aux groupes de jeunes n'est pas autorisée, garantissant ainsi un séjour paisible et agréable à tous les hôtes.
Particularités
Vu le calme qui règne dans cette maison, aucune location n'est accordée à des groupes de jeunes
Classement
- Cuisine (plaque de cuisson (électrique, lave-vaisselle , congélateur (1-59L, combinaison réfrigérateur/congélateur)
- Living/chambre à coucher
- Chambre (lit double)
- Chambre (lit double)
- Salle de bains (congélateur (200-249L, lavabo, douche, WC)
- Chauffage (électrique)
- Terrasse
- Mobilier de jardin
- Chaises longues
- 2x lit simple
Dans les alentours de BF-57HYC
A 1 kilomètre de BF-57HYC, vous tomberez sur un ou plusieurs restaurants. De plus, il y a un lac/un plan d'eau libre à moins de 1,7 kilomètre. Un supermarché est présent dans les environs, à 1,25 kilomètre. Vous pourrez aussi vous détendre, car dans les environs de BF-57HYC à Rørvig, vous pouvez l'eau.
- Restaurant (1 km)
- Supermarché (1,25 km)
- Eau (1,7 km)
-
Ce logement de vacances -
Logements de vacances dans le voisinage
Prix et disponibilité
Pour déterminer le prix exact, sélectionnez d'abord une date d'arrivée ci-dessous. Les éventuels frais supplémentaires ou options sur place sont indiqués sous le calendrier.
Le calendrier ci-dessous indique la disponibilité de BF-57HYC à Rørvig. Les dates d'arrivée encore disponibles sont en vert foncé. Les jours où vous pouvez séjourner dans ce logement sont en vert clair. Les dates en rouge sont celles où le logement est déjà occupé et pour celles en gris, la disponibilité du logement n'est pas encore connue.
- Disponible
- Arrivée possible
- Occupé
- Inconnu pour l'instant
Vous trouverez ci-dessous un aperçu des périodes disponibles et des prix. Avec le bouton « Réserver maintenant », vous pouvez facilement réserver avec notre connexion sécurisée : toutes vos données seront traitées avec le plus grand soin.
| Durée du séjour | Arrivée | Départ | Prix | ||
|---|---|---|---|---|---|
Frais sur place
| Obligation | |
|---|---|
| Électricité | DKK 3,74 par kWh |
| Optionnel | |
|---|---|
| Chaise haute | DKK 110 par séjour |
| Draps | Possibilité de louer par set de linge, DKK 155 par personne par Séjour |
| Lit bébé | DKK 110 par séjour |
| Nettoyage final | DKK 1.187, ou à faire par le locataire |
| Serviettes de bain | Inclus dans le set de linge |
| Torchons de cuisine | Inclus dans le set de linge |
Conditions et délais de paiement
Un acompte de 30 % du montant total et de l'assurance d'annulation éventuelle doit être payé dans les sept jours. Le deuxième versement interviendra au plus tard six semaines avant le départ.
Si vous payez en deux fois, alors vous recevrez un rappel par e-mail une semaine avant l'expiration du deuxième délai. Si vous partez dans un délai de six semaines, le paiement doit être effectué en une seule fois. En cas de départ dans les quinze jours, le paiement doit être effectué en une seule fois et par carte de crédit (tous les pays), PayPal ou Mister Cash (Belgique uniquement).
pour un week-end
Basé sur 37 évaluations
- 6
- 2
- 2
Mode de paiement
Réserver sans souci
Si vous avez des questions relatives à cette location de vacances ou besoin d'aide pour faire votre réservation, n'hésitez pas à nous contacter.
Posez une question